Detached £650,000

SUBSTANTIAL DETACHED PROPERTY

13/14 BEDROOMS WITH EN-SUITE'S

FORMER CARE HOME

GRANTED PERMISSION FOR CHILDREN'S DAY NURSERY

POTENTIAL CONVERSION FOR SELF-CONTAINED FLAT

GOOD ACCESS TO A2 & M2

EPC RATING - E

A substantial detached property which has, until recently, operated as a residential care home and situated in the popular Village of Hoo St Werburgh which provides good access to the A2/M2 to the south.

There is extensive accommodation over three floors has been GRANTED PERMISSION for current change of use from former care home for the elderly with disabilities to a children's day nursery. There is also potential for conversion of the building to provide a number of self-contained flats, but to all necessary Planning Consents being obtainable.

External
 Gardens to front and rear

  
Internal
  
  
Ground Floor
 Entrance porch, entrance hall, living room area, dining room area, two separate garden room extensions, kitchen and store room. Bedrooms 1,2 and 3, each with en-suite facilities, bedrooms 4 and 5, bathroom.

  
Bedroom
 4.41m x 3.07m (14'6" x 10'1")
 
  
En-suite
 1.89m x 1.68m (6'2" x 5'6")
 
  
Bedroom
 4.65m x 2.79m (15'3" x 9'2")
 
  
W/C
 1.90m x 1.32m (6'3" x 4'4")
 
  
Bathroom
 2.40m x 1.86m (7'10" x 6'1")
 
  
Bedroom
 3.61m x 3.40m (11'10" x 11'2")
 
  
Kitchen
 3.75m x 2.45m (12'4" x 8'0")
 
  
Reception
 6.04m x 3.92m (19'10" x 12'10")
 
  
Day Room
 5.55m x 3.41m (18'3" x 11'2")
 
  
Day Room
 5.42m x 4.17m (17'9" x 13'8")
 
  
W/C
 1.54m x 1.45m (5'1" x 4'9")
 
  
Kitchen
 6.25m x 4.33m (20'6" x 14'2")
 
  
Bedroom
 3.84m x 3.55m (12'7" x 11'8")
 
  
En-Suite
 3.25m x 2.17m (10'8" x 7'1")
 
  
Bedroom
 3.82m x 3.39m (12'6" x 11'1")
 
  
En-Suite
 2.67m x 1.34m (8'9" x 4'5")
 
  
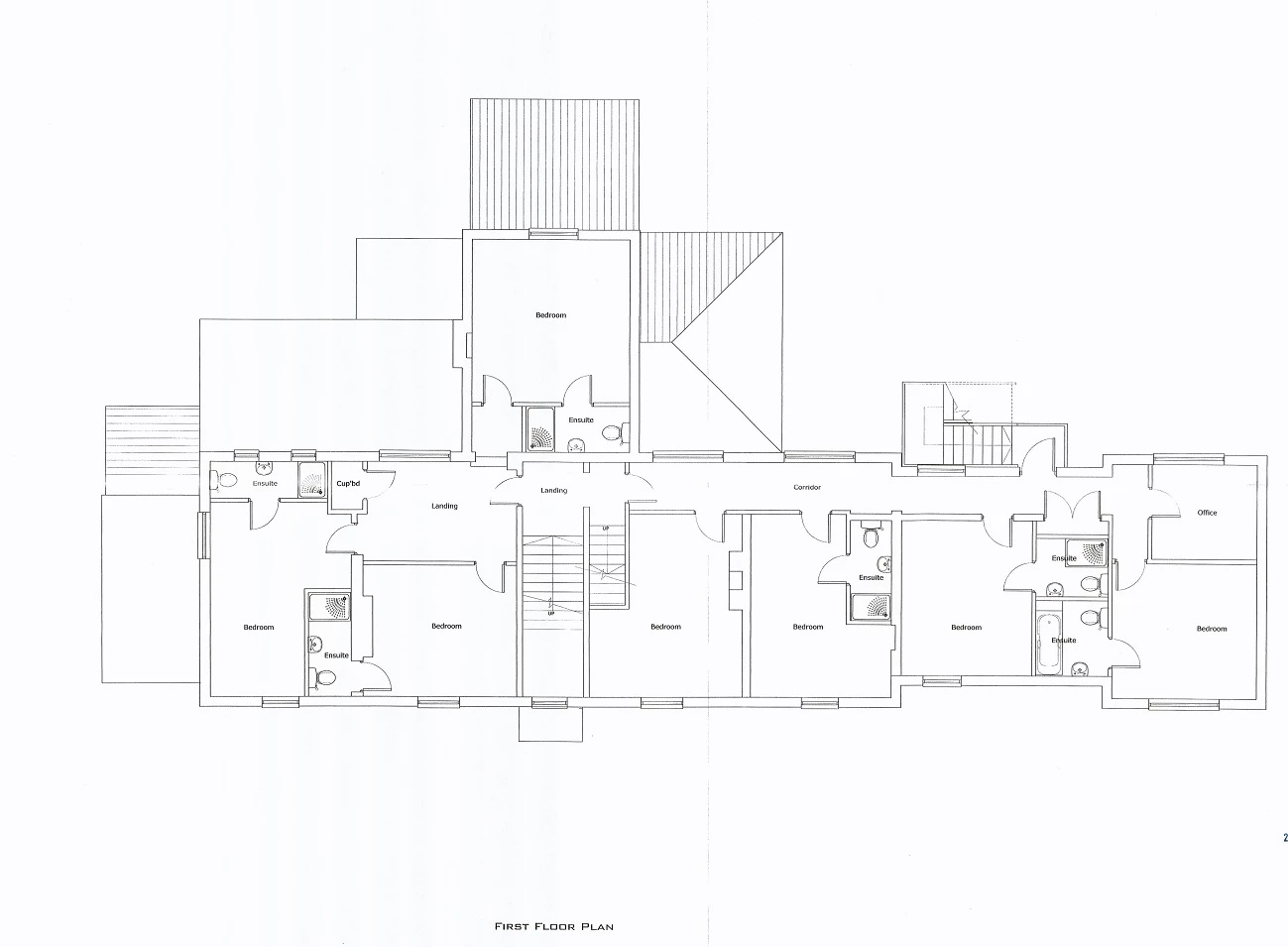
First Floor
 Landing, bedrooms 6 to 12 inclusive all with en-suite facilities and store room.

  
Bedroom
 3.37m x 3.62m (11'1" x 11'11")
 
  
En-Suite
 1.95m x 1.68m (6'5" x 5'6")
 
  
Office
 2.69m x 2.45m (8'10" x 8'0")
 
  
Bedroom
 3.92m x 3.19m (12'10" x 10'6")
 
  
En-Suite
 1.96m x 1.49m (6'5" x 4'11")
 
  
Bedroom
 4.78m x 3.61m (15'8" x 11'10")
 
  
En-Suite
 2.57m x 1.05m (8'5" x 3'5")
 
  
Bedroom
 4.79m x 2.91m (15'9" x 9'7")
 
  
Bedroom
 3.92m x 3.33m (12'10" x 10'11")
 
  
En-Suite
 2.67m x 1.09m (8'9" x 3'7")
 
  
Bedroom
 0.00m x 3.56m (0'0" x 11'8")
 
  
En-Suite
 2.98m x 0.96m (9'9" x 3'2")
 
  
Bedroom
 4.20m x 4.02m (13'9" x 13'2")
 
  
En-Suite
 2.75m x 1.18m (9'0" x 3'10")
 
  
Second Floor
 Landing, bedroom 13 with en-suite and office.

  
Office
 4.43m x 4.10m (14'6" x 13'5")
 
  
En-Suite
 2.94m x 1.68m (9'8" x 5'6")
 
  
Office
 4.34m x 3.76m (14'3" x 12'4")
 
  

Location

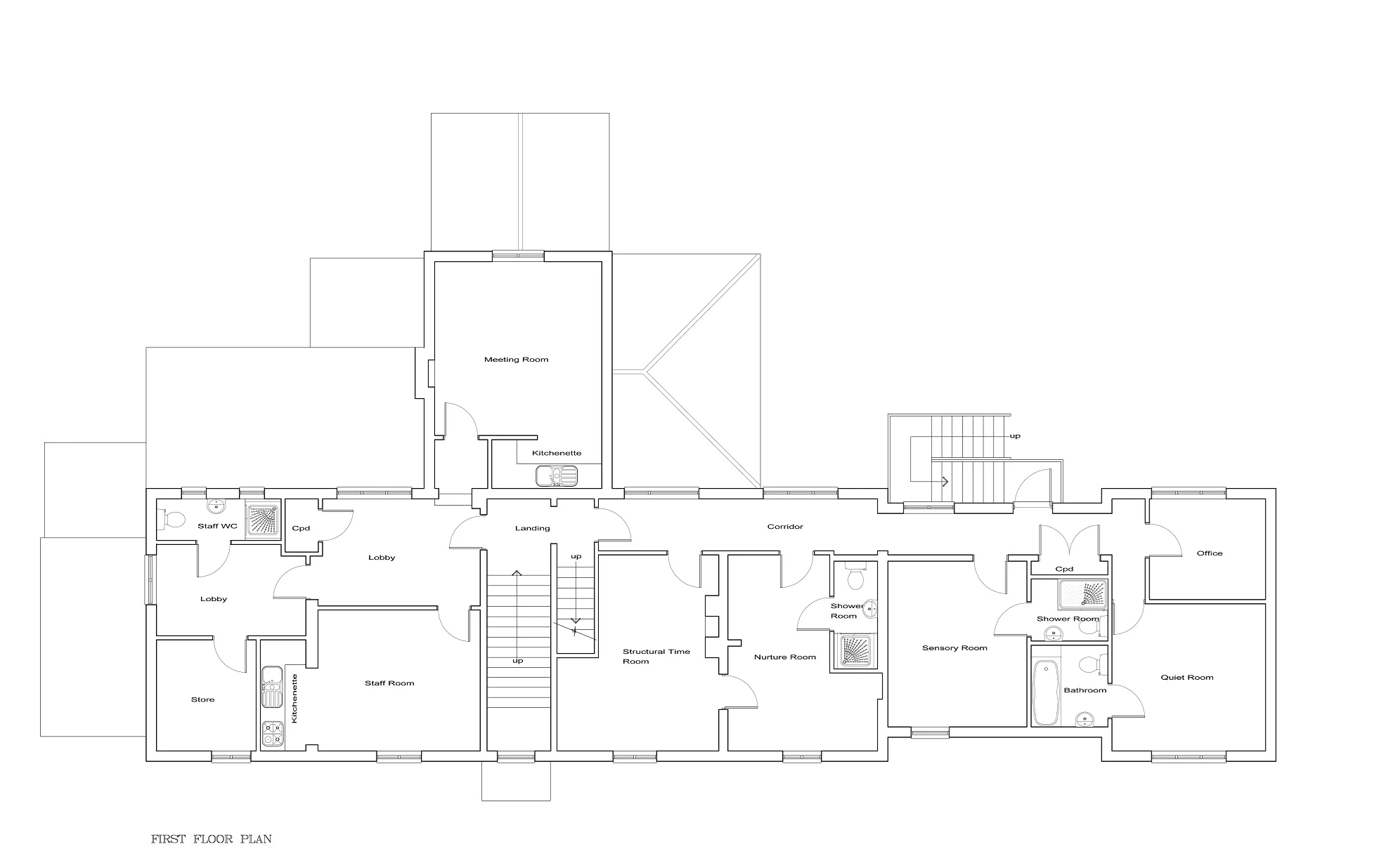
Floor Plans

Existing Ground Floor

Property Images

Photo 13
Photo 12
Photo 4
Photo 1
Photo 6
Photo 2
Photo 8
Photo 7
Photo 9
Photo 15

Arrange a Viewing

Arrange a Viewing

This property is currently Sold. However, register your details below and we will contact you if it becomes available again.

IMPORTANT NOTICE FROM ASHTON REEVES

Descriptions of the property are subjective and are used in good faith as an opinion and NOT as a statement of fact. Please make further specific enquires to ensure that our descriptions are likely to match any expectations you may have of the property. We have not tested any services, systems or appliances at this property. We strongly recommend that all the information we provide be verified by you on inspection, and by your Surveyor and Conveyancer.