3 Bedroom Semi Detached £1,750 pcm   Tenancy Info

Semi Detached house

Three bedrooms

Two receptions

Gas central heating

Double glazing

Fantastic location

Close to great schools

Good size garden

Great transport links

Close to M25/A2/M2

Available

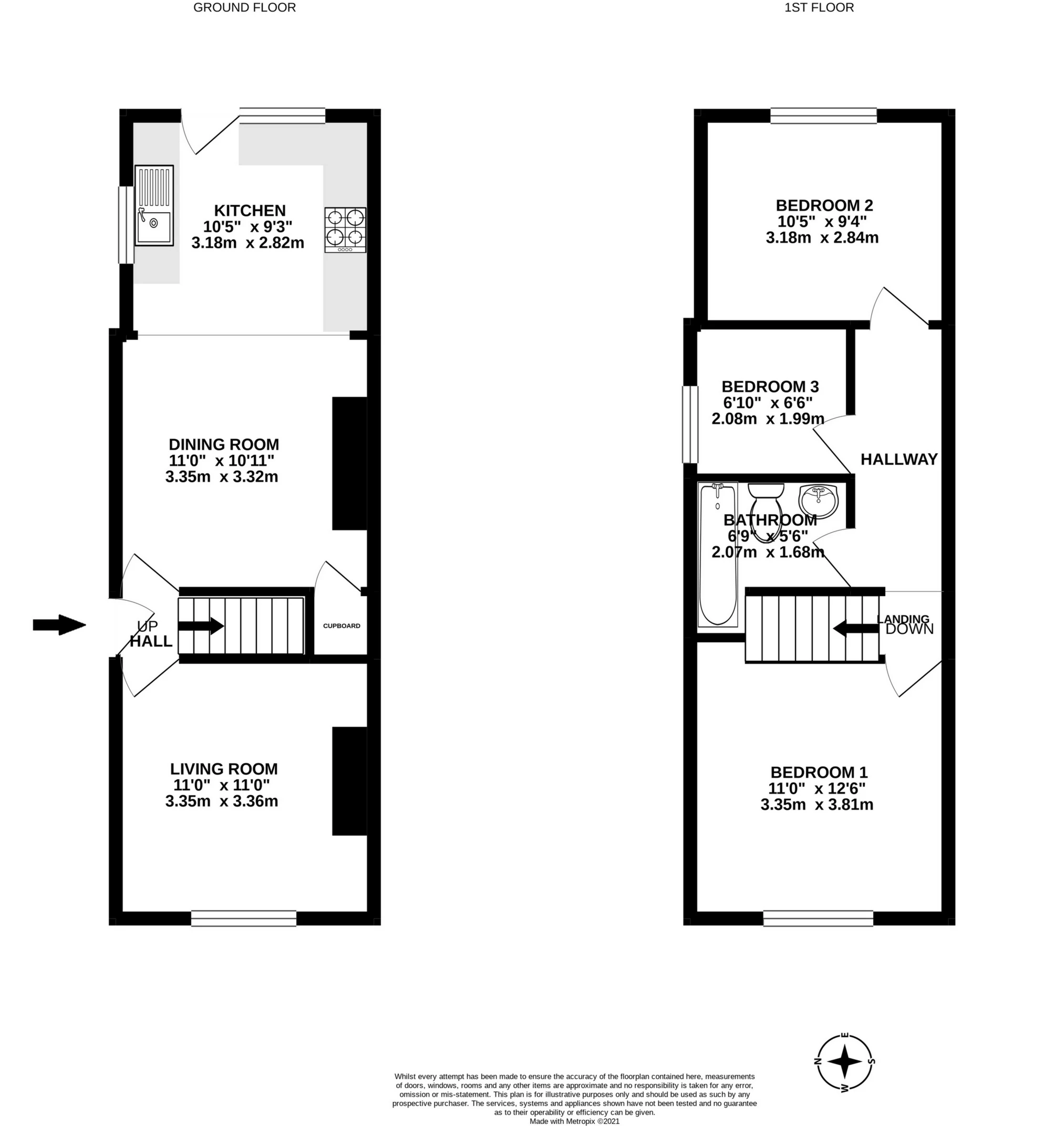
Ashton Reeves are pleased to offer this 3 bedroom semi detached house in Dartford, which is set over two levels and has been recently fully refurbished to a high standard. It comprises of 2 receptions rooms, a spacious lounge and a large dining area which leads onto a open plan, modern fitted kitchen. The kitchen is set at the back of the property leading onto a large garden.

The upstairs comprises of 2 double and 1 single bedrooms and a family bathroom. The property has Gas Central Heating, with a radiator in each room. Lino Flooring in kitchen and bathroom and laid to carpet in all other rooms. Double Glazing throughout. The property is situated on the outskirts of Dartford, close to both Dartford and Stone BR Station. It is perfectly positioned for quick and easy access to the M25, Dartford Bridge and A2/M2.

Kitchen / Diner
 21'62" x 0'0" (7.98m x 0.00m)
Dining area into open plan kitchen. Fitted units. Carpet in Diner to Lino in Kitchen. DG window and back door to garden.

  
Living Room
 11'3" x 11'1" (3.43m x 3.38m)
Laid to carpet, double glazed window to front, radiator.

  
Bedroom 1
 11'2" x 10'9" (3.40m x 3.28m)
Double bedroom, laid to carpet, DG window to front, radiator.

  
Bedroom 2
 10'5" x 9'4" (3.18m x 2.84m)
Double bedroom, laid to carpet, DG window to rear, radiator.

  
Bedroom 3
 6'9" x 6'5" (2.06m x 1.96m)
Single bedroom, laid to carpet, DG window to side, radiator

  
Bathroom
 6'8" x 5'5" (2.03m x 1.65m)
Lino flooring, shower over bath, radiator, extractor fan

  
 
  
  
 
  
  
 
  
  
 
  
  
 
  
  
 
  
  

EPC for Hill House Road, Dartford, Kent, DA2

Energy
blank Current Potential
Energy
Current Potential

Location

Floor Plan

Floor Plan 1

Property Images

Photo 2
Kitchen
Kitchen
Kitchen diner
Lounge
Lounge
Lounge
Bathroom
Bedroom 1
Bedroom 1
Bedroom 2
Bedroom 2
Bedroom 3
Garden

Arrange a Viewing

Arrange a Viewing

This property is currently Let Agreed. However, register your details below and we will contact you if it becomes available again.

Virtual Tour

IMPORTANT NOTICE FROM ASHTON REEVES

Descriptions of the property are subjective and are used in good faith as an opinion and NOT as a statement of fact. Please make further specific enquires to ensure that our descriptions are likely to match any expectations you may have of the property. We have not tested any services, systems or appliances at this property. We strongly recommend that all the information we provide be verified by you on inspection, and by your Surveyor and Conveyancer.