4 Bedroom Terraced £1,700 pcm   Tenancy Info

Four bedroom house

Two reception rooms

Modern kitchen

Refurbished family bathroom

Large rear garden

Great travel links

Close to local shops

Gas central heating

Double glazing throughout

EPC rating available

Available

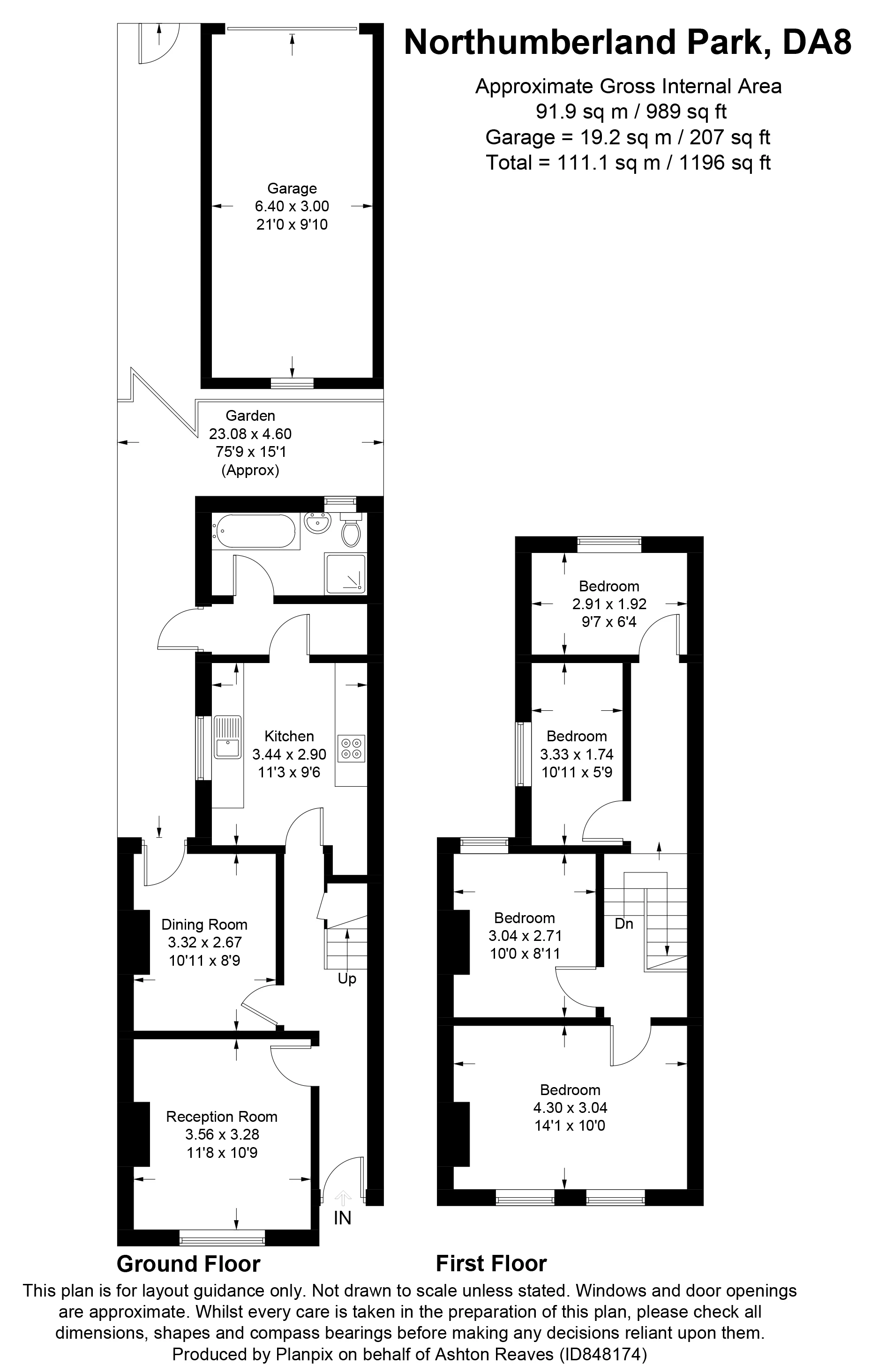
Ashton Reeves are pleased to offer this recently refurbished four-bedroom family home situated in Northumberland Heath. Accommodation comprises of two reception rooms, modern kitchen and refurbished bathroom with four spacious bedrooms upstairs. This property also benefits from a large rear garden and spacious garage with electricity to the rear of the garden.


This property would make a perfect family home being close to local amenities, transport links including Barnehurst and Erith stations with fast links into London and in the catchment area for many popular schools nearby.

PLEASE NOTE the landlord of this property is also the Director of Bexletts Ltd trading as, Ashton Reeves and the director of the company that owns this property.

Reception room
 11'8" x 10'9" (3.56m x 3.28m)
Brand new grey carpets laid with freshly painted grey walls throughout. Two large double glazed windows to front.

  
Dining Room
 10'11" x 8'9" (3.33m x 2.67m)
Brand new grey carpets laid with freshly painted grey walls throughout. Door leading outside to the garden,

  
Kitchen
 11'3" x 9'6" (3.43m x 2.90m)
Refurbished white high gloss kitchen with wall to base units, black marble effect tiles to the floor with white effect marbled worktops.

  
Bedroom One
 14'1" x 10'0" (4.29m x 3.05m)
Brand new grey carpets with freshly painted grey walls throughout. Two large double glazed windows to the front.

  
Bedroom Two
 10'0" x 8'11" (3.05m x 2.72m)
Brand new grey carpets with freshly painted grey walls throughout. Double glazed window to rear.

  
Bedroom Three
 10'11" x 5'9" (3.33m x 1.75m)
Brand new grey carpets with freshly painted grey walls throughout. Double glazed window to rear.

  
Bedroom Four
 9'7" x 6'4" (2.92m x 1.93m)
Brand new grey carpets with freshly painted grey walls throughout. Double glazed bedroom to rear

  
Garden
 75'9" x 15'1" (23.09m x 4.60m)
Large garden with grass laid and spacious garage to the rear.

  

EPC for Northumberland Park, Erith, Kent, DA8

Energy
blank Current Potential
Energy
Current Potential

Location

Floor Plan

Floor Plan 1

Property Images

Photo 14
Photo 2
Photo 5
Photo 7
Photo 8
Photo 1
Photo 2
Photo 4
Photo 3
Photo 9
Photo 11
Photo 2

Arrange a Viewing

Arrange a Viewing

This property is currently Let Agreed. However, register your details below and we will contact you if it becomes available again.

Virtual Tour

IMPORTANT NOTICE FROM ASHTON REEVES

Descriptions of the property are subjective and are used in good faith as an opinion and NOT as a statement of fact. Please make further specific enquires to ensure that our descriptions are likely to match any expectations you may have of the property. We have not tested any services, systems or appliances at this property. We strongly recommend that all the information we provide be verified by you on inspection, and by your Surveyor and Conveyancer.